Couverture
Couverture
Couverture
2

Versonnex

Annonce bien à vendre 21 500 €

21 500 €

undefined NaN pièce(s), VERSONNEX

Versonnex (01210) Leggett Immobilier International Ref : SL-A41393LK01

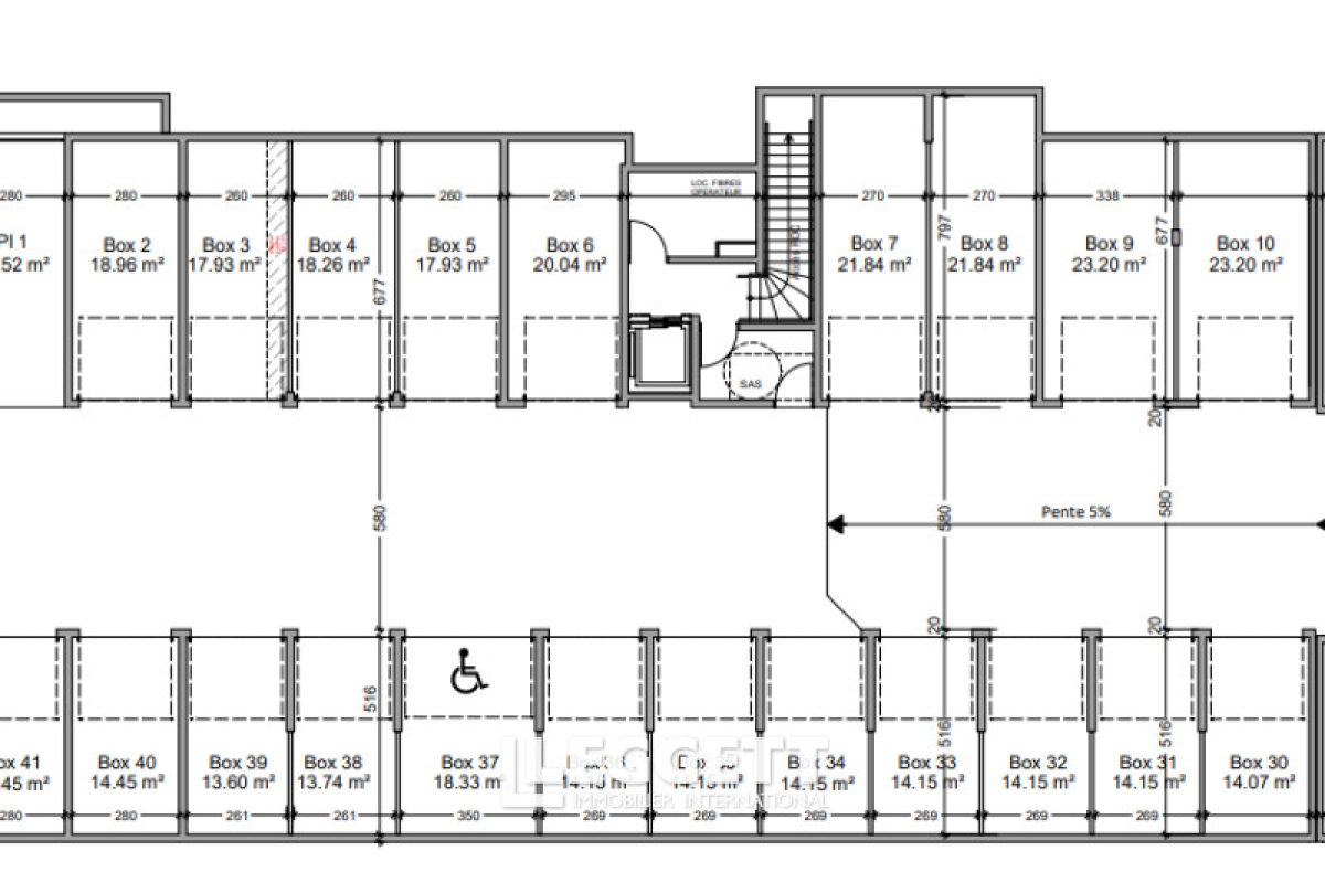
GARAGE a VERSONNEX a vendre - Dernière opportunité d'acheter un garage dans une résidence neuve. * G7 Garage 21,51 m² 28 000 € G8 Garage 21,51 m² 28 000 € G39 Garage 13,6 m² 21 500 € Parking souterrain avec entrée sécurisée Livraison immédiate

Recevoir
le dossier complet
Obtenir
un rendez-vous
Etre appelé
au plus vite
22/11/2025
Demandez plus d'informations à l'agence grâce à votre interlocuteur Maisons&Appartements
logo agence

Leggett Immobilier International

42 route de Riberac 24340 La Rochebeaucourt-et-Argentine France

Voir la fiche de l'agence
À propos du prix
Diagnostic et Risques
cochon

À propos du prix

NS
Dpe réalisé après le 01 juillet 2021
Les informations sur les risques auxquels ce bien est exposé sont disponibles sur le site Géorisques : www.georisques.gouv.fr
À propos du prix
Diagnostic et Risques