Couverture
Couverture
Couverture
Couverture
Couverture
Couverture
Couverture
Vidéo de l'annonce 6

Cannes

Annonce appartement à vendre 185 000 €

185 000 €

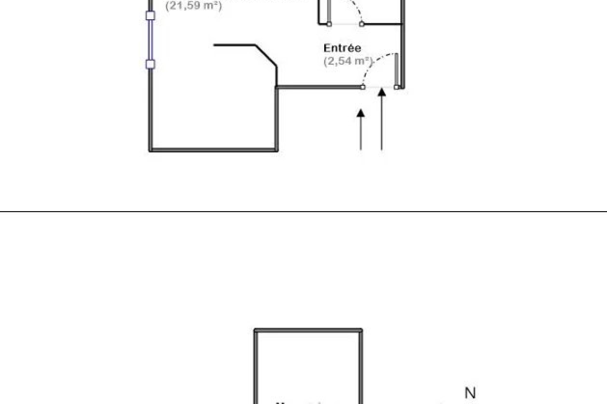
CANNES CENTRE - STUDIO MEUBLÉ - MEZZANINE

Cannes (06400) MARCLÉ Real Estate Cannes Ref : NP6333

Idéal pied-à-terre / investissement locatif : appartement aménagé en séjour, cuisine ouverte, coin nuit, salle de bains avec baignoire balnéo et mezzanine ! Le tout rénové et au calme. Location saisonnière autorisée. Vendu meublé Afficher le téléphone

Recevoir
le dossier complet
Obtenir
un rendez-vous
Etre appelé
au plus vite
03/01/2026
Demandez plus d'informations à l'agence grâce à votre interlocuteur Maisons&Appartements
logo agence

MARCLÉ Real Estate Cannes

46, rue d'Antibes 06400 Cannes France

Voir la fiche de l'agence
télécharger la brochureTélécharger la brochure
Vidéo de l'annonce
À propos du prix
Diagnostic et Risques
cochon

À propos du prix

224 |7
7
Dpe réalisé après le 01 juillet 2021
Montant estimé des dépenses annuelles d'énergie pour un usage standard : 590 €
Année de référence du montant estimé des dépenses annuelles d'énergie : 2021
Les informations sur les risques auxquels ce bien est exposé sont disponibles sur le site Géorisques : www.georisques.gouv.fr
Vidéo de l'annonce
À propos du prix
Diagnostic et Risques

Découvrez plus d'annonces dans la même ville