Couverture
Couverture
Couverture
Couverture
Couverture
4

Bruges

Annonce maison à vendre 527 000 €

527 000 €

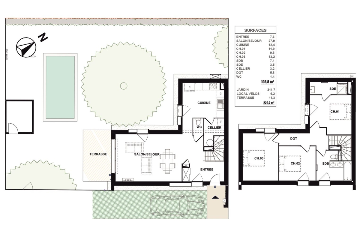
Maison indépendante - 104m ²

Bruges (33520) AGENCE BIP - BERNARD IMMOBILIER PINSAN Ref : 106

Jolie maison individuelleT4 neuve, de 104 m² habitables, dotée d'un jardin de 229 m², avec piscine , dans un petit lotissement de 17 lots, à Bruges, à 150 m de l'arrêt du tram D. Elle se compose au rez-de-chaussée d'une entrée avec placard, d'un séjour orientée Sud, ouvrant sur le jardin au travers d'une large baie, d'une cuisine et d'un cellier. À l'étage, sous rampant, de trois chambres dont une avec salle d'eau privative et d'une salle de bain. Conforme à la norme BBC RT-2012, elle dispose d'un système de chauffage et de production d'eau chaude par pompe à chaleur air-eau. La taxe foncière est de 1850 euros, les charges mensuelles de l'association syndicale sont de 50 euros et les honoraires d'agence sont à la charge du vendeur. Elle sera disponible en juin 2026. Les honoraires d'agence sont à la charge du vendeur. Les risques auxquels ce bien est exposé sont disponibles sur le site Géorisques: Afficher le téléphone

Recevoir
le dossier complet
Obtenir
un rendez-vous
Etre appelé
au plus vite
05/12/2025
Demandez plus d'informations à l'agence grâce à votre interlocuteur Maisons&Appartements
logo agence

AGENCE BIP - BERNARD IMMOBILIER PINSAN

À propos du prix
Diagnostic et Risques
cochon

À propos du prix

Non soumis au DPE
Dpe réalisé avant le 01 juillet 2021
Les informations sur les risques auxquels ce bien est exposé sont disponibles sur le site Géorisques : www.georisques.gouv.fr
À propos du prix
Diagnostic et Risques

Découvrez plus d'annonces dans la même ville