Couverture
Couverture
Couverture
Couverture
3

La Turballe

Annonce maison à vendre 244 950 €

244 950 €

Vente Maison/villa 4 pièces

La Turballe (44420) iad France Ref : 1647412

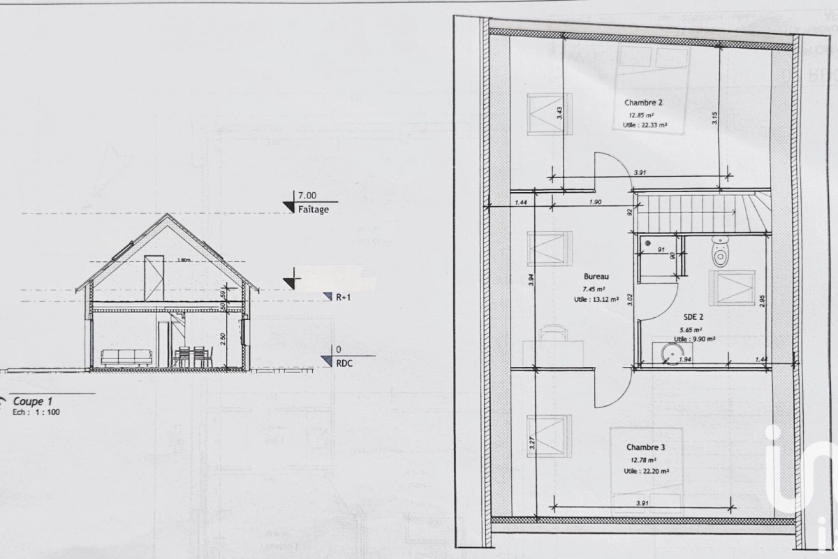
iad France - Guillaume Jacquet vous propose: Maison 3 chambres de 106m² environ, vendu hors d'eau, au sein d'un quartier agréable à 1km des plages et commerces. Orientée sud-ouest, celle-ci vous offre la possibilité de poursuivre le projet actuel. Au rez-de-chaussée, l'entrée dessert, pièce de vie, suite parentale avec sde et dressing, buanderie et wc indépendant. A l'étage l'escalier offre l'accès à un espace bureau deux belles chambres et une sdb avec wc. Il est également possible de personnaliser les espaces suivant vos envies et vos besoins. Le terrain de 386m² permet également divers aménagements et comprend déjà un garage. Ne manquez pas l'occasion de devenir propriétaire de cette maison en devenir et contactez moi afin que je vous présente l'ensemble du projet. Honoraires d'agence à la charge du vendeur. Bien non soumis au DPE. Les informations sur les risques auxquels ce bien est exposé, y compris l'obligation légale de débroussaillement, sont disponibles sur le site Géorisques : La présente annonce immobilière a été rédigée sous la responsabilité éditoriale de M Guillaume Jacquet mandataire indépendant en immobilier (sans détention de fonds), agent commercial de la SAS I@D France immatriculé au RSAC de ST NAZAIRE sous le numéro 791546054, titulaire de la carte de démarchage immobilier pour le compte de la société I@D France SAS. Afficher le téléphone

Recevoir
le dossier complet
Obtenir
un rendez-vous
Etre appelé
au plus vite
06/11/2025
Demandez plus d'informations à l'agence grâce à votre interlocuteur Maisons&Appartements
logo agence

iad France

Carre Haussmann III Allee de la ferme de Varatre 77127 Lieusaint France

Voir la fiche de l'agence
À propos du prix
Diagnostic et Risques
cochon

À propos du prix

NC
Dpe réalisé après le 01 juillet 2021
Les informations sur les risques auxquels ce bien est exposé sont disponibles sur le site Géorisques : www.georisques.gouv.fr
À propos du prix
Diagnostic et Risques

Découvrez plus d'annonces dans la même ville