Couverture
Couverture
Couverture
Couverture
3

Villeurbanne

Annonce appartement à vendre 229 566 €

229 566 €

VILLEURBANNE

Villeurbanne (69100) CENTRALYM Ref : 2746 VILLE 13

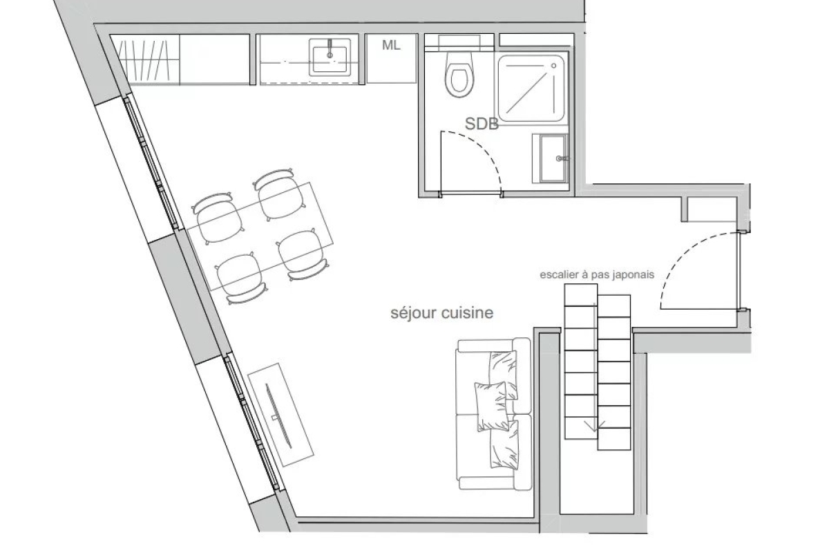
Au cœur d'un quartier vivant et paisible, dans un immeuble de 7 logements, entièrement réhabilité, duplex 2 pièces au 3è et dernier étage, sans ascenseur, d'une superficie Carrez de 37.70 m². Il est composé d'une pièce de vie avec une cuisine meublée et partiellement équipée, et d'une salle de douche avec toilettes, à l'étage d'une chambre sous combles avec vélux. A 3 mn à pied du bus 69, à 10 mn du Métro A Flachet, et de Carrefour Villeurbanne. Prestations soignées : double vitrage isolant et phonique, chauffage individuel électrique, fibre... Pour plus d'informations ou une visite, merci de contacter Cécile de Jouffrey Centralym au 06 85 39 23 35. Afficher le téléphone

Recevoir
le dossier complet
Obtenir
un rendez-vous
Etre appelé
au plus vite
20/03/2025
Demandez plus d'informations à l'agence grâce à votre interlocuteur Maisons&Appartements
logo agence

CENTRALYM

36 rue des Aqueducs 69005 Lyon 5ème France

Voir la fiche de l'agence
À propos du prix
Diagnostic et Risques
cochon

À propos du prix

  • 229 566 €.
  • Honoraires à la charge du vendeur
190
Dpe réalisé après le 01 juillet 2021
Les informations sur les risques auxquels ce bien est exposé sont disponibles sur le site Géorisques : www.georisques.gouv.fr
À propos du prix
Diagnostic et Risques

Découvrez plus d'annonces dans la même ville