ST-GERVAIS-LES-BAINS 229 000 €
Appartement à vendre - 2 pièces - 31 m²
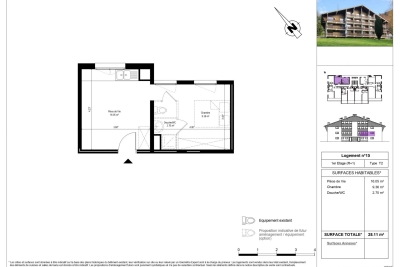
A VENDRE – ST GERVAIS MT BLANC (74170) – T2 avec jardin et v
A VENDRE – SAINT?GERVAIS?LES?BAINS (74170) – T2 avec terrasse, jardin et vue Mont?Blanc Situé dans un secteur recherché de Saint?Gervais?les?Bains, à environ 2 km du centre du village et à proximité des stations du domaine Évasion Mont?Blanc, ce charmant appartement T2 d'environ 32 m², en rez?de?jardin...
Réf : VA11325-CIMMFRANCHISE